Price £844 pcm - Available Now - Unfurnished


  • Rent is Inclusive of Gas, electric, water and sewerage charges
  • Modern kitchen and shower room / wet room
  • EPC Rating D
  • Council Tax Band A
  • Quiet Rural location
  • Off Road Parking x 1
  • One level accomodation

Modern kitchen and wet room. The one level accommodation is ideal for anyone with mobility issues. Open plan kitchen/diner and lounge leading to a double bedroom and wet room.
From the parking area there are a few steps that lead up to a path leading to the annexe entrance.

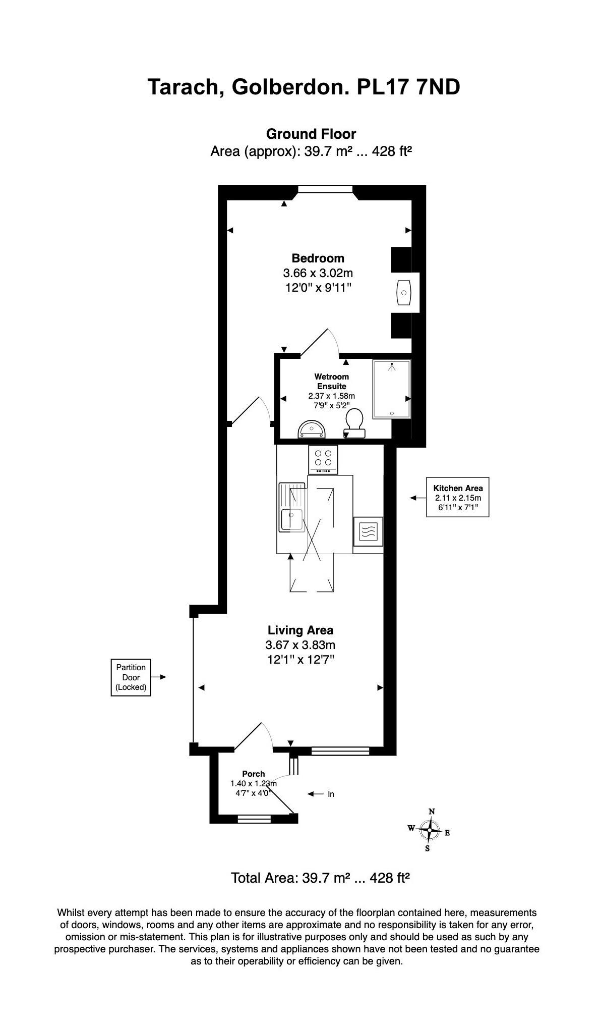
Entrance Porch - 4'7" (1.4m) x 4'0" (1.22m)
Double glazed door leads into good size porch. Tiled floor. Wall mounted coat hooks. Inner door leads to kitchen/lounge/diner.

Kitchen / Lounge & Diner
One open plan room. Modern fitted kitchen with built in low level oven, hob and extractor above. Built in slimline dishwasher. Space for a microwave above the main oven. Space for fridge/freezer. Tiled flooring.

Please note ** there is no facility for a washing machine **

Kitchen area - 7 ` 1" x 6` 11"
Living area - 12` 7" x 12` 1"

Bedroom - 12'0" (3.66m) x 9'11" (3.02m)
Double bedroom with feature/ornamental fireplace.
** Please Note ** The furniture as pictured can remain for a tenancy or be removed. The bed has the required safety labels and is in good condition.

Wet Room - 7'9" (2.36m) x 5'2" (1.57m)
Modern `wet room` with an electric shower. Wash hand basin, WC, heated towel rail. Wall mounted mirrored vanity unit. Wall mounted mirror with glass shelf below and light/shaver socket above. Walls fully fitted with aqua boards and floor tiled.

Outside
Off road parking for 1 car on a tarmac driveway (shared with the landlords)
A few steps lead up to a path to the front door.


Viewing / Pre Screening
Before you are offered a viewing a pre referencing credit check will be undertaken to ensure you meet referencing requirements. Subject to this, viewings will be offered on a `first come first served` basis. Full referencing will be undertaken if you wish to apply for a tenancy. For more details please contact us: www.nealassociates,co.uk

Permitted Payments
The following are permitted payments which we may request from you:

a) The rent
b) A refundable tenancy deposit (reserved for any damages or defaults on the part of the tenant) capped at no more than five weeks` rent where the annual rent is less than £50,000, or six weeks` rent where the total annual rent is £50,000 or above
c) We may also charge for other permitted payments, under the relevant legislation, such as contractual damages
d) Reasonable cost to replace lost keys/security device
e) Payments to change the tenancy when requested by the tenant, capped at £50, or reasonable costs incurred if higher
f) Payments associated with early termination of the tenancy, when requested by the tenant
g) Payments in respect of utilities, communication services, TV licence and council tax; and
h) A default fee for late payment of rent

Neal Associates Ltd is a member of CMP - Client Money Protect which is a client money protection scheme.
Neal Associates Ltd is a member of The Property Ombudsman which is a redress scheme. You can find out more details on the agent`s website or by contacting the agent directly.


Material Information
Property Type - Ground Floor Single Storey Annexe

Utilities -

Heating = Gas Central Heating (Included in rent)
EPC Rating - D
Council Tax Band - A
Electric Supply = Mains (included in rent)
Water Supply = Mains (Included in rent)
Drainage = Mains (included in rent)
Broadband Connection =

Standard & Ultrafast availability (as sourced via Ofcom)
Networks available = Openreach

Mobile Phone Signal = Mobile Phone Signal (as sourced via Ofcom)

EE: Good Outdoor = 78% Performance Score in area
Three: Good Outdoor/ Variable In-home = 51%
O2: Good Outdoor = 40%
Vodaphone: Good Outdoor = 59%

Parking - Offroad Parking for 1

Rights & Restrictions - None
Listed Building - No
Restrictions - No

Flood Risk - (as sourced via Gov.uk)

Surface Water - Very Low
Rivers and Sea - Very Low

Erosion Risk - No



Deposit: £973.00

Minimum Tenancy : 6 months

Council Tax
Cornwall Council, Band A

Notice
All photographs are provided for guidance only.

The following are permitted payments which we may request from you:

a) The rent
b) A refundable tenancy deposit (reserved for any damages or defaults on the part of the tenant) capped at no more than five weeks' rent where the annual rent is less than £50,000, or six weeks' rent where the total annual rent is £50,000 or above
c) A refundable holding deposit (to reserve a property) capped at no more than one week's rent
d) Payments to change the tenancy when requested by the tenant, capped at £50, or reasonable costs incurred if higher
e) Payments associated with early termination of the tenancy, when requested by the tenant
f) Payments in respect of utilities, communication services, TV licence and council tax; and
g) A default fee for late payment of rent and replacement of a lost key/security device, where required under a tenancy agreement

Please call us if you wish to discuss this further.
Floor Plan
EER Chart

The Energy-Efficiency Rating is a measure of a home's overall efficiency. The higher the rating, the more energy-efficient the home is, and the lower the fuel bills are likely to be.

Utility Supply Type
Electric Mains Supply
Gas Unknown
Water Mains Supply
Sewerage Mains Supply
Broadband FTTC
Telephone Unknown

Other Items Description
Heating Gas Central Heating
Garden/Outside Space No
Parking Yes
Garage No

Broadband Coverage Highest Available Download Speed Highest Available Upload Speed
Standard Unknown Unknown
Superfast Unknown Unknown
Ultrafast Unknown Unknown

Mobile Coverage Indoor Voice Indoor Data Outdoor Voice Outdoor Data
EE Unknown Unknown Unknown Unknown
Three Unknown Unknown Unknown Unknown
O2 Unknown Unknown Unknown Unknown
Vodafone Unknown Unknown Unknown Unknown

Broadband and Mobile coverage information supplied by Ofcom.


marker icon